LADENFLÄCHE IN HANNOVER-MITTE

LADENFLÄCHE IN HANNOVER-MITTE

OBJEKTDATEN

Objekt ID 1554
Objektart einzelhandel
Objekttyp Einzelhandelsladen
Kaltmiete 15.000,00 €
Provision 3 Nettokaltmieten

Provision Hinweis

Nettokaltmiete 15.000,00 €
Nutzfläche 1025.00 m2
Gesamtfläche 1065.00 m2
Verkaufsfläche 560.00 m2
Baujahr 1964
Energiepass
EnergiepassVerbrauch
Baujahr Anlagetechnik1963
Jahrgang2014
Gültig bis20-11-2035
Energieverbrauchkennwert123.30
EnergietraegerFernwärme
Beschreibung

Beschreibung

Die großzügige Verkaufsfläche befindet sich im Erdgeschoss und Untergeschoss eines gepflegten Geschäftshauses in zentraler Innenstadtlage von Hannover.

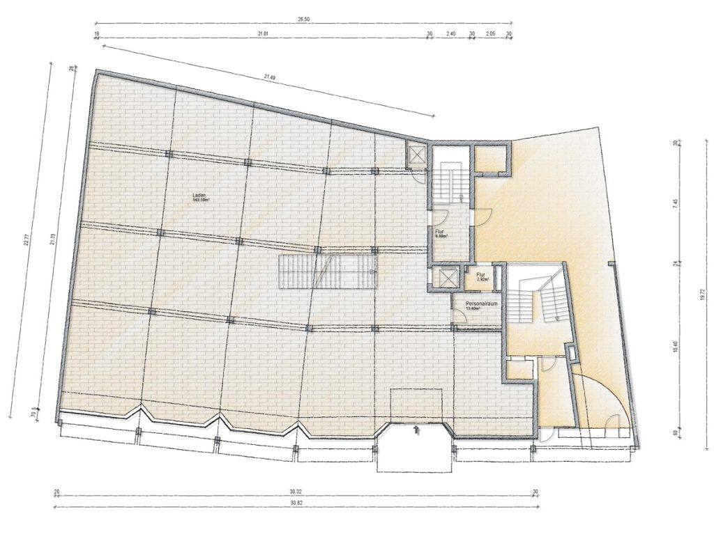
Insgesamt umfasst die Fläche rund 1.065 m² und teilt sich in ca. 560 m² im Erdgeschoss mit großzügiger Ladenfläche sowie ca. 505 m² im Untergeschoss mit Lager- (ehemalig Verkaufs-Etage bzw. Showroom), Neben- und Sozialräumen.

Der Energieausweis ist in Auftrag und liegt zur Besichtigung vor.

Die hier bereitgestellten Informationen basieren auf den Angaben der Verkäufer bzw. Eigentümer. Für deren Richtigkeit wird keine Gewähr übernommen. Bitte beachten Sie die „Allgemeinen Geschäftsbedingungen“ im Exposé.

Lage

Die attraktive Verkaufsfläche befindet sich in zentraler Innenstadtlage von Hannover, mitten im beliebten Geschäfts- und Einkaufsviertel rund um die Altstadt und den Kröpcke.

Die Lage zeichnet sich durch eine hohe Passantenfrequenz und eine hervorragende Sichtbarkeit aus. Ideale Voraussetzungen für Einzelhändler, die von Laufkundschaft profitieren möchten.

Das direkte Umfeld ist geprägt von einer lebendigen Mischung aus Einzelhandel, Gastronomie und Dienstleistungsunternehmen. Zahlreiche bekannte Marken, kleine Boutiquen und gemütliche Cafés schaffen eine einladende Atmosphäre und ziehen täglich viele Besucher an.

Die verkehrstechnische Anbindung ist exzellent. Mehrere Stadtbahn- und Buslinien sind in nur wenigen Gehminuten erreichbar, ebenso der Hauptbahnhof. Auch für Kunden, die mit dem Auto anreisen, stehen in der näheren Umgebung mehrere öffentliche Parkhäuser zur Verfügung.

Weitere Informationen

Mit einer Gesamtfläche von rund 560 m² im Erdgeschoss bietet das Objekt reichlich Platz für eine vielseitige Nutzung im Einzelhandel, Filialisten oder Konzepte mit hohem Warenbedarf.

Die Verkaufsfläche überzeugt durch ihre offene Raumgestaltung, großzügige Schaufensterfront mit optimaler Sichtbarkeit und die helle, freundliche Atmosphäre, die eine attraktive Warenpräsentation ermöglicht.

Ergänzend zur Verkaufsfläche steht im Erdgeschoss ein Personalraum zur Verfügung, der sich ideal als Aufenthalts- oder Büroraum nutzen lässt.

Das Untergeschoss mit einer Fläche von rund 505 m² bietet umfangreiche Lager-, Showroom und Nebenflächen. Hier befinden sich zur Zeit ein großes Lager, ein zusätzlicher Büroraum, sowie Toilettenanlagen.

Durch die direkte interne Verbindung zwischen Verkaufs- und Lagerbereich sind kurze Wege und ein effizienter Betriebsablauf gewährleistet.

Die starke Umgebungsstruktur eignet sich die Fläche besonders für Sortimente aus den Bereichen Mode, Lifestyle, Feinkost oder Beauty.

Grundrisse

Google Maps

Mit dem Laden der Karte akzeptieren Sie die Datenschutzerklärung von Google.
Mehr erfahren

Karte laden

KONTAKT

Ansprechpartner:
Carolin von Hörde
Email:
carolin@maklerinnen-hannover.de
Telefon:
00491722006787
Mobil:
00491722006787

Anfrage senden

*“ zeigt erforderliche Felder an

Dieses Feld dient zur Validierung und sollte nicht verändert werden.
Nach oben scrollen